Сдам в аренду нежилое помещение
Описание
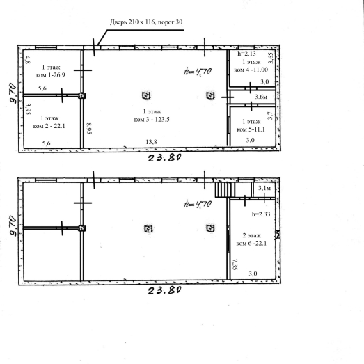
Сдам в аренду нежилое помещение под склад, производство, торговлю. Помещение 220 м.кв., высота потолка 4,5 м. Есть место под парковку. Ввод 380в, 15 квт. Перекресток ул.Островского и ул.Кренкеля, недалеко от пр Строителей и ул.Шевченко
Сдам в аренду нежилое помещение на карте
Загружаем карту
